





CONCEPT-M 167 Rheinbach von Bien-Zenker
Ab 516.887 €
Bewertungen von Bien-Zenker
4,1
(271)
Wohnfläche
171 m²
Zimmer
5
Ausbaustufe
Schlüsselfertig
Bauweise
Fertighaus
Etagen
1,5
Energiestandard
Effizienzhaus 55
Dachform
Satteldach
Hausart
Einfamilienhaus
Beschreibung
Maximaler Wohnkomfort und zahlreiche architektonische Highlights
Eine kontrastreiche Architektur sowie ein modernes Wohnkonzept zum Wohlfühlen machen das CONCEPT-M 167 zu einem echten Traumhaus. Das Satteldach mit Dachüberstand wird mit Flachdächern auf Giebel und Querhaus kombiniert – eine moderne Interpretation des Landhaus-Stils entsteht. Im Erdgeschoss ist das weitläufige Wohn- und Esszimmer mit offener Küche das Herz des Hauses und begeistert mit seinem großzügigen Schnitt und Design. Über die Galerie gelangen Sie in das Obergeschoss, in dem das Elternschlafzimmer samt integrierter Ankleide und direktem Zugang zum Bad sicher ein weiteres Highlight ist. Beim CONCEPT-M 167 Rheinbach deuten die Fenster mit integrierter Sitzgelegenheit und Übereck-Verglasungen bereits außen an, wie hell und Licht durchflutet die Innenräume sind.
Diese Variante des CONCEPT-M 167 können Sie als Musterhaus in Rheinbach live erleben.
Der Preis bezieht sich auf die Ausbaustufe ZAF als Effizienzhaus 55 inkl. Bodenplatte gemäß aktuell gültiger Bau- und Leistungsbeschreibung. Grundrisse und Abbildungen können Extras zeigen. Flächenangaben nach DIN 277.
Merkmale
- Erker
- Gästezimmer
- Balkon
Sie haben Interesse?
Laden Sie sich jetzt Ihr kostenloses Exposé zu diesem Haus herunter:
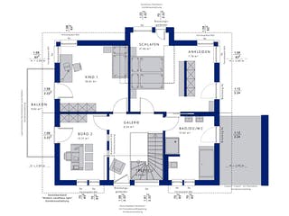
Grundrissfür CONCEPT-M 167 Rheinbach
Außenmaße
Länge: 9,42 m
Breite: 10,67 m
Grundrisse
Der Grundriss entspricht nicht Ihren Vorstellungen?
Passen Sie den Grundriss an Ihre persönlichen Bedürfnisse an und besprechen Sie Ihren individuellen Plan mit einem Bauberater des Anbieters.
Merkmale
Energiestandard und Förderung
Energiestandard
Effizienzhaus 40 Plus
Effizienzhaus 55
Plusenergiehaus
U-Wert
0,14
Dach
Dachform
Satteldach
Dachneigung
25°
Kniestockhöhe
160 cm
Preisdetails für CONCEPT-M 167 Rheinbach
Schlüsselfertig ab
516.887 €
ab 1.556,05 €
Dieser Preis ist ein Beispiel für den Anfang, ein Berater kann Ihnen ein detailliertes Angebot erstellen, das Ihren Bedürfnissen entspricht.
Möchten Sie bei Ihrem Projekt Geld sparen?
Durch einen Angebotsvergleich mit Einfamilienhaus.de können Sie bis zu 20 % Ihrer Baukosten sparen.
Über den Anbieter Bien-Zenker
Zum Anbieterprofil
Bewertungen
4,1
(271)

Bewertungen
4,1
271 BewertungenGut
Bien-Zenker in Zahlen
Gründungsjahr
1906
Häuser im Angebot
99
Häuser pro Jahr
> 100
Häuser gesamt
> 80.000
Mitarbeiter
> 600
Bewertungen von Bien-Zenker
Sind noch am Anfang
Sind noch am Anfang
17 Feb. 2026Marco L.
Sehr freundliche Mitarbeiterin . Wir konnten ...
Sehr freundliche Mitarbeiterin . Wir konnten schnell einen passenden Termin vereinbaren.
29 Jan. 2026Litke P.
Es waren 6 Unternehmen, die mich kontaktiert ...
Es waren 6 Unternehmen, die mich kontaktiert haben und ich habe derzeit mit 4 Unternehmen Termine gemacht.
21 Jan. 2026Heike S.
Leistungsspektrum
Finanzierungsberatung
Preisgarantie
Bauzeit Garantie
Individuelle Planung
Blower Door Test
Persönliche Beratung für Ihre individuellen Wünsche
Finden Sie jetzt Ihren Ansprechpartner
Bien-Zenker
Auszeichnungen, Zertifikate & Mitgliedschaften














Ähnliche Häuser Für CONCEPT-M 167 Rheinbach