




EDITION 120 V2 von Bien-Zenker
Ab 298.684 €
Bewertungen von Bien-Zenker
4,1
(272)
Wohnfläche
120 m²
Zimmer
4
Ausbaustufe
Schlüsselfertig
Bauweise
Fertighaus
Etagen
1,5
Energiestandard
Effizienzhaus 55
Dachform
Satteldach
Hausart
Einfamilienhaus
Beschreibung
Helles Einfamilienhaus mit zwei Pultdach-Zwerchgiebeln, Erker und Balkon
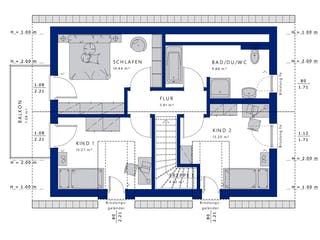
Das EDITION 120 eignet sich mit seinem kompakt gestalteten Grundriss perfekt für kleinere Grundstücke. Das familienfreundliche Wohnkonzept nutzt die Grundfläche von rund 7,50 mal 10 Metern optimal aus. Die funktional gestaltete Diele mit angeschlossenem Gäste-WC und Technikraum erschließt im Erdgeschoss einen offenen Wohn-Bereich. Erstaunlich viel Raum findet sich auch im Obergeschoss mit einem geräumigen Bad, Elternschlafzimmer und zwei Kinderzimmern. Im EDITION 120 spiegeln sich die Erfahrung von mehr als 110 Jahren und die gesamte Hausbau-Kompetenz von Bien-Zenker wider. Es lässt sich – wie alle Bien-Zenker Häuser – flexibel an Ihre individuellen Wünsche und Bedürfnisse anpassen und ist damit der ideale Mittelpunkt für Ihren neuen Lebensraum.
Der Preis bezieht sich auf die Ausbaustufe ZAF als Effizienzhaus 55 inkl. Bodenplatte gemäß aktuell gültiger Bau- und Leistungsbeschreibung. Grundrisse und Abbildungen können Extras zeigen. Flächenangaben nach DIN 277.
Merkmale
- Erker
- Balkon
Sie haben Interesse?
Laden Sie sich jetzt Ihr kostenloses Exposé zu diesem Haus herunter:
Grundrissfür EDITION 120 V2
Außenmaße
Länge: 10,05 m
Breite: 7,55 m
Grundrisse
Der Grundriss entspricht nicht Ihren Vorstellungen?
Passen Sie den Grundriss an Ihre persönlichen Bedürfnisse an und besprechen Sie Ihren individuellen Plan mit einem Bauberater des Anbieters.
Merkmale
Energiestandard und Förderung
Energiestandard
Effizienzhaus 40 Plus
Effizienzhaus 55
Plusenergiehaus
U-Wert
0,14
Dach
Dachform
Satteldach
Dachneigung
38°
Kniestockhöhe
100 cm
Preisdetails für EDITION 120 V2
Schlüsselfertig ab
298.684 €
ab 899,16 €
Dieser Preis ist ein Beispiel für den Anfang, ein Berater kann Ihnen ein detailliertes Angebot erstellen, das Ihren Bedürfnissen entspricht.
Möchten Sie bei Ihrem Projekt Geld sparen?
Durch einen Angebotsvergleich mit Einfamilienhaus.de können Sie bis zu 20 % Ihrer Baukosten sparen.
Über den Anbieter Bien-Zenker
Zum Anbieterprofil
Bewertungen
4,1
(272)

Bewertungen
4,1
272 BewertungenGut
Bien-Zenker in Zahlen
Gründungsjahr
1906
Häuser im Angebot
99
Häuser pro Jahr
> 100
Häuser gesamt
> 80.000
Mitarbeiter
> 600
Bewertungen von Bien-Zenker
Sehr gute Beratung, Herr Pit Schubert ist seh...
Sehr gute Beratung, Herr Pit Schubert ist sehr nett und sehr kompetent und hat sich viel Zeit und Wegweisend uns geholfen. Mir und meiner Frau ganz andere Perspektive eröffnet sehr zu Positiv. Freue mich auf die nächsten Schritte mit Herrn Pit Schubert.
06 Mai 2026Yilmaz G.
Sind noch am Anfang
Sind noch am Anfang
17 Feb. 2026Marco L.
Sehr freundliche Mitarbeiterin . Wir konnten ...
Sehr freundliche Mitarbeiterin . Wir konnten schnell einen passenden Termin vereinbaren.
29 Jan. 2026Litke P.
Leistungsspektrum
Finanzierungsberatung
Preisgarantie
Bauzeit Garantie
Individuelle Planung
Blower Door Test
Persönliche Beratung für Ihre individuellen Wünsche
Finden Sie jetzt Ihren Ansprechpartner
Bien-Zenker
Auszeichnungen, Zertifikate & Mitgliedschaften














Ähnliche Häuser Für EDITION 120 V2