



CELEBRATION 211 V3 von Bien-Zenker
Ab 520.414 €
Bewertungen von Bien-Zenker
4,1
(272)
Wohnfläche
212 m²
Zimmer
8
Ausbaustufe
Schlüsselfertig
Bauweise
Fertighaus
Etagen
1,5
Energiestandard
Effizienzhaus 55
Dachform
Satteldach
Hausart
Zweifamilienhaus
Beschreibung
Innovatives Zweifamilienhaus mit Zwerchgiebel XXL und Terrassenbalkon
Elegant und extrem funktional – diese beiden Attribute sind bezeichnend für das attraktive Zweifamilienhaus CELEBRATION 211 mit seinen beiden Satteldachvarianten. Das durchdachte Hauskonzept ist perfekt geeignet für kompaktere Grundstücke und bietet dank seiner intelligenten Raumaufteilung viel Platz für zwei Familien. Besondere Highlights setzt die schicke und moderne Architektur. Bei diesem Zweifamilienhaus bietet jedes Geschoss eine eigene Wohneinheit. Die Raumaufteilung ist im Erd- und im Obergeschoss nahezu identisch und bietet jeweils zwei großzügige Schlafzimmer, ein großes Wohnzimmer, eine innovative Kombination aus Esszimmer und Küche sowie ein Wellness-Bad. Zu jeder Wohneinheit gehört außerdem ein eigener Hauswirtschaftsraum.
Der Preis bezieht sich auf die Ausbaustufe ZAF als Effizienzhaus 55 inkl. Bodenplatte gemäß aktuell gültiger Bau- und Leistungsbeschreibung. Grundrisse und Abbildungen können Extras zeigen. Flächenangaben nach DIN 277.
Merkmale
- Balkon
Sie haben Interesse?
Laden Sie sich jetzt Ihr kostenloses Exposé zu diesem Haus herunter:
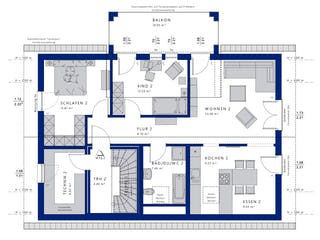
Grundrissfür CELEBRATION 211 V3
Außenmaße
Länge: 9,42 m
Breite: 13,79 m
Grundrisse
Der Grundriss entspricht nicht Ihren Vorstellungen?
Passen Sie den Grundriss an Ihre persönlichen Bedürfnisse an und besprechen Sie Ihren individuellen Plan mit einem Bauberater des Anbieters.
Merkmale
Energiestandard und Förderung
Energiestandard
Effizienzhaus 40 Plus
Effizienzhaus 55
Plusenergiehaus
U-Wert
0,14
Dach
Dachform
Satteldach
Dachneigung
38°
Kniestockhöhe
100 cm
Preisdetails für CELEBRATION 211 V3
Schlüsselfertig ab
520.414 €
ab 1.566,66 €
Dieser Preis ist ein Beispiel für den Anfang, ein Berater kann Ihnen ein detailliertes Angebot erstellen, das Ihren Bedürfnissen entspricht.
Möchten Sie bei Ihrem Projekt Geld sparen?
Durch einen Angebotsvergleich mit Einfamilienhaus.de können Sie bis zu 20 % Ihrer Baukosten sparen.
Über den Anbieter Bien-Zenker
Zum Anbieterprofil
Bewertungen
4,1
(272)

Bewertungen
4,1
272 BewertungenGut
Bien-Zenker in Zahlen
Gründungsjahr
1906
Häuser im Angebot
99
Häuser pro Jahr
> 100
Häuser gesamt
> 80.000
Mitarbeiter
> 600
Bewertungen von Bien-Zenker
Sehr gute Beratung, Herr Pit Schubert ist seh...
Sehr gute Beratung, Herr Pit Schubert ist sehr nett und sehr kompetent und hat sich viel Zeit und Wegweisend uns geholfen. Mir und meiner Frau ganz andere Perspektive eröffnet sehr zu Positiv. Freue mich auf die nächsten Schritte mit Herrn Pit Schubert.
06 Mai 2026Yilmaz G.
Sind noch am Anfang
Sind noch am Anfang
17 Feb. 2026Marco L.
Sehr freundliche Mitarbeiterin . Wir konnten ...
Sehr freundliche Mitarbeiterin . Wir konnten schnell einen passenden Termin vereinbaren.
29 Jan. 2026Litke P.
Leistungsspektrum
Finanzierungsberatung
Preisgarantie
Bauzeit Garantie
Individuelle Planung
Blower Door Test
Persönliche Beratung für Ihre individuellen Wünsche
Finden Sie jetzt Ihren Ansprechpartner
Bien-Zenker
Auszeichnungen, Zertifikate & Mitgliedschaften














Ähnliche Häuser Für CELEBRATION 211 V3