

















Auf der Röth von Fullwood Wohnblockhaus
Ab 200.000 €
Bewertungen von Fullwood Wohnblockhaus
4,3
(77)
Wohnfläche
114 m²
Zimmer
4,5
Ausbaustufe
Bausatzhaus
Bauweise
Blockhaus
Etagen
1,5
Energiestandard
Effizienzhaus 55
Dachform
Satteldach
Hausart
Einfamilienhaus
Beschreibung
Kleines Blockhaus ganz groß
Ein kleines Eigenheim für zwei Personen wollten die Eigentümer von Blockhaus „auf der Röth“ bauen, wobei „klein“ relativ ist: Verglichen mit anderen europäischen Ländern bauen und wohnen die Deutschen sehr groß! Und auch in Blockhaus „auf der Röth“ hätte eine dreiköpfige Familie locker Platz. So ersetzt im Dachgeschoss ein Gästezimmer das übliche Kinderzimmer und eine großzügige Ankleide ist dem Schlafzimmer direkt angeschlossen. Ein schönes Wohn-Bad findet ebenfalls Platz unter der Dachschräge und sogar ein Luftraum zwischen Erdgeschoss und offenem Firstbalken ist vorhanden, was schön ist, aber gleichzeitig ein weniger an Wohnfläche bedeutet.
Offener Wohnbereich und viel Stauraum
Da das Eigentümerpaar keinen Keller unter sein Blockhaus bauen wollte, gibt es im Erdgeschoss einen Hauswirtschaftsraum und einen Technikraum, der durch den Hauswirtschaftsraum erreichbar ist. Außerdem verfügt der an der Eingangsseite befindliche Carport eine große Abstellfläche, wo beispielsweise das Brennholz und die Mülltonnen elegant verstaut werden. Betritt man das Blockhaus durch die Eingangstür, gelangt man in eine Diele, die zum Wohnbereich hin offen ist. Dort fließen eine kleine Küche, ein Essbereich und ein gemütliches Wohnzimmer ineinander über und sind nur durch eine leichte L-Form und einen kleinen Rechteckerker optisch gegliedert. Der Esstisch steht im rundum verglasten Erker, darüber befindet sich der Luftraum bis hinauf zum Dachstuhl. Reichlich natürliches Licht fällt hier herein, auch von oben. Überhaupt ist der Wohnbereich den ganzen Tag über sehr hell, da er fast rundum mit großen, bodentiefen Fenstern ausgestattet ist. Ein Gäste-WC komplettiert das Raumprogramm im Erdgeschoss.
Holz plus schwarz ergibt hell!
Als echte Blockhausfans haben die Eigentümer auf Holz pur gesetzt, das heißt, alle Wände sind aus Holz. Keine verputzten Trennwände, wie dies heutzutage in modernen Blockhäusern sehr oft der Fall ist, unterbrechen die naturhellen Kiefernwände. Die Außenwände (tragend) sind einschalig aus massiver Polarkiefer hergestellt, während die Trennwände leichter und dünner sind (Ständerbau) und mit Holzplanken verkleidet wurden. Damit alles schön hell bleibt, wurden Wände und Decken mit UV-Schutz behandelt. Im Außenbereich wählte das Ehepaar einen Holzschutz mit wenigen grauen Pigmenten, der die spätere Vergrauung optisch vorweg nimmt. Farblich darauf abgestimmt harmonieren die grauen Tondachziegel sowie die schwarzen Fensterrahmen und Rollladenkästen bestens dazu. Im Innern besticht ein schieferfarbener Fliesenboden mit flachen Fugen (sehr pflegeleicht!) kontrastreich zu den hellen Holzwänden. Dem hellen, luftigen Ambiente nimmt der tiefdunkle Boden nichts weg, sondern erdet den Innenbereich und lässt die Holzwände sogar noch heller wirken. Schwarz, Holz und ein wenig weiß geben im ganzen Haus den Ton an. Dem hellen, sinnlichen Kiefernholz ist es zu verdanken, dass es nicht düster oder kühl wirkt. So ergänzt sich alles perfekt und der Gesamteindruck ist modern mit persönlicher Note. Die Individualität seiner Eigentümer spiegelt Haus „auf der Röth“ eins zu eins wieder.
Bequem und schnell bauen lassen
Ursprünglich träumten die Eigentümer von einem Rundstammhaus, nahmen aber schnell von diesem Gedanken Abstand, nachdem Ihnen klar wurde, wie groß und langwierig das Setzungsverhalten von Rundstammhäusern ist. Um die dadurch entstehende Arbeit (und Schmutz) zu vermeiden, schwenkten sie auf ein setzungsfreies Blockhaus mit glatten Wänden um. Nachdem der passende Blockhausspezialist gefunden ward, der setzungsfreie, und winddichte Vollholzwände in Fertigkonstruktion anbot, wurde Blockhaus „auf der Röth“ individuell nach Bauherrenwunsch geplant. Zusammen mit dem Berater der Hausfirma besprach man jedes Detail und pünktlich konnte der Baustart beginnen. Die Montage der 20 cm dicken Polarkiefernwände und den Großteil des Innenausbaus führte der erfahrene Haushersteller durch, dessen Monteure vor Ort manches perfekt nachbesserten, was nicht hundert Prozent passte, und sogar spontane Ideen der Bauherrschaft noch aufgriffen und umsetzten. Den Rest erledigten örtliche Fachfirmen, die der Hausherr selbst engagierte. Auch an die Zukunft wurde gedacht: Theoretisch kann bei Bedarf ein Aufzug ins Treppenhaus eingebaut werden, denn die Ü-Fünfziger ziehen ein anderthalb stöckiges Haus einem Bungalow vor. Um einen ebenen Außenbereich (Terrasse) zu haben, wurde das Grundstück aufgeschüttet, und 5 m Gefälle begradigt.
Einfach „dufte“ ist das Raumklima
Die Holzterrasse ist bereits natürlich vergraut und passt perfekt zum Außenanstrich des Hauses. Das kleine Gartenhäuschen erhielt den gleichen Anstrich, so wirkt alles einheitlich und sehr geordnet. Das „Wohngefühl“ in ihrem Blockhaus beschreibt das Ehepaar als reines „Wohlgefühl“. Beide lieben die natürlichen, chemisch unbehandelten Holzwände und deren warme Ausstrahlung sowie handschmeichelnde Haptik. Es ist niemals feucht oder kalt im Blockhaus, und selbst Nichtraucher nehmen keinen Tabakgeruch wahr, obwohl im Haus geraucht wird. Die Küchengerüche ziehen zu 100 % durch eine Ansaugung mit Aktivkohlefilter und Fettfilter ab, stören also niemals die angenehme Raumluft im offenen Wohnbereich. Ein Plus an Behaglichkeit liefert ein heller Kaminofen im Wohnzimmer mit seiner angenehmen Strahlungswärme. In den Übergangszeiten ersetzt er komplett die mit Gas betriebene Fußbodenheizung und dient ansonsten als Schmuckelement mit Blick in lodernde Flammen.
Angabe zum Preis: ab Oberkante Bodenplatte
Merkmale
- Carport
- Gästezimmer
- Kamin
- Holzhaus
Sie haben Interesse?
Laden Sie sich jetzt Ihr kostenloses Exposé zu diesem Haus herunter:
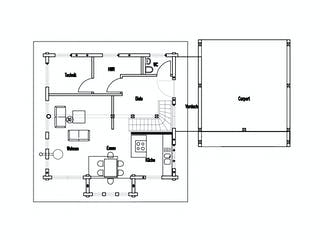
Grundrissfür Auf der Röth
Außenmaße
Länge: 9,3 m
Breite: 8,5 m
Grundrisse
Der Grundriss entspricht nicht Ihren Vorstellungen?
Passen Sie den Grundriss an Ihre persönlichen Bedürfnisse an und besprechen Sie Ihren individuellen Plan mit einem Bauberater des Anbieters.
Merkmale
Energiestandard und Förderung
Energiestandard
Effizienzhaus 40
Effizienzhaus 55
Plusenergiehaus
Dach
Dachform
Satteldach
Dachneigung
35°
Kniestockhöhe
93 cm
Preisdetails für Auf der Röth
Bausatzhaus ab
200.000 €
ab 602,08 €
Dieser Preis ist ein Beispiel für den Anfang, ein Berater kann Ihnen ein detailliertes Angebot erstellen, das Ihren Bedürfnissen entspricht.
Möchten Sie bei Ihrem Projekt Geld sparen?
Durch einen Angebotsvergleich mit Einfamilienhaus.de können Sie bis zu 20 % Ihrer Baukosten sparen.
Über den Anbieter Fullwood Wohnblockhaus
Zum Anbieterprofil
Bewertungen
4,3
(77)

Bewertungen
4,3
77 BewertungenHervorragend
Fullwood Wohnblockhaus in Zahlen
Gründungsjahr
1956
Häuser im Angebot
14
Häuser gesamt
ca. 200
Mitarbeiter
ca. 100
Bewertungen von Fullwood Wohnblockhaus
Noch keine Konkreten Pläne.- Dient alles bish...
Noch keine Konkreten Pläne.- Dient alles bisher nur für eine Information
21 März 2026Erwin D.
Antrag läuft,wir müssen abwarten
Antrag läuft,wir müssen abwarten
15 März 2026Dirk O.
Hervorragendes Beratungsgespräch. Freundluch ...
Hervorragendes Beratungsgespräch. Freundluch und sehr kompetent. Sehr Lösungsorientiert. Tolle Ideen für die Ausführung.
07 März 2026Sven P.
Leistungsspektrum
Preisgarantie
Bauzeit Garantie
Individuelle Planung
Blower Door Test
Persönliche Beratung für Ihre individuellen Wünsche
Finden Sie jetzt Ihren Ansprechpartner
Fullwood Wohnblockhaus
Weitere Häuser
Ähnliche Häuser Für Auf der Röth