



















Entlebuch von Fullwood Wohnblockhaus
Ab 410.000 €
Bewertungen von Fullwood Wohnblockhaus
4,3
(77)
Wohnfläche
175 m²
Zimmer
8
Ausbaustufe
Ausbauhaus
Bauweise
Blockhaus
Etagen
1,5
Energiestandard
Effizienzhaus 55
Dachform
Satteldach
Hausart
Einfamilienhaus
Beschreibung
Exklusives Effizienzhaus aus Massivholz
Modern, hell und sehr großzügig entspricht Blockhaus „Entlebuch“ exakt den Wünschen und Vorstellungen seiner Eigentümer. Mit dem wohngesunden, energiesparsamen und ressourcenschonenden Blockhaus hat sich das beruflich stark engagierte Eigentümerpaar einen wohltuenden, ruhigen Rückzugsort gebaut.
Nachhaltig bauen und wohnen
Überzeugt von der Nachhaltigkeit des Baustoffs Holz kommt kein anderes Baumaterial für die Hauseigentümer in Frage. Auch bei der Heizung wurde auf Nachhaltigkeit geachtet und eine Kombination aus Geothermie mit Sole-Wasser-Wärmepumpe gewählt. Erdwärme ist eine einheimische und umweltfreundliche Energiequelle, die keine Schadstoffe erzeugt, also auch kein CO2 freisetzt. Für die Erd-Sonde wurden 285 Meter in die Tiefe gebohrt, wo eine konstante Temperatur zwischen 18 und 25 Grad Celsius herrscht. Mittels Wärmepumpe wird die gewonnene Wärme umgewälzt, auf die gewünschte Temperatur gebracht und im Warmwasserspeicher der Fußbodenheizung gespeichert. Der Überschuss wird zur Erwärmung des Brauchwassers genutzt, und eine Indach-Photovoltaikanlage erzeugt sämtlichen benötigten Strom – auch hier wird der Überschuss genutzt, indem er ins öffentliche Netzt geleitet wird. Die Südausrichtung des Hausdachs und dessen Neigung von 24 Grad stellen ideale Voraussetzungen zur Nutzung der solaren Energie dar.
Modernes Blockhaus mit reichlich natürlichem Lichteinfall
Oberste Priorität hatte für die Eigentümer ihre Freiheit die eigenen Ideen umsetzen zu können. Dazu gehören große Fenster, die viel natürliches Licht einfallen lassen, sowie ein echtes Massivholzhaus zu bauen, das von Stil und Struktur her aber sehr modern ist. Das naturhelle Polarkiefernholz der tragenden Außenwände wurde innen mit einer leicht milchigen Lasur behandelt, die einen Tick aufhellt, und mit UV-Schutz vor dem Nachdunkeln bewahrt. Dazu kombinierten die Hauseigner weiß verputzte, leichte Trennwände (Ständerbau), die neben noch mehr Helligkeit das moderne Ambiente im Blockhaus betonen. Ein bis zum First offener, sehr hoher Luftraum erstreckt sich über dem offenen Wohn/Ess-Bereich im Erdgeschoss und betont die Weitläufigkeit der Hausfläche in die Vertikale. Das Ergebnis ist ein besonders großzügiges und „luftiges“ Wohngefühl ohne Einengung und Druck. Die imposante, offene Sichtfirstpfette betont das Bodenständige und Urtypische, für das ein Blockhaus steht. Behaglichkeit und wohngesundes Raumklima dank chemisch unbehandeltem Massivholz vereint in zeitlosem Ambiente dank moderner (Innen-) Architektur.
Reibungsloser Wohnalltag auf zweieinhalb Geschossen
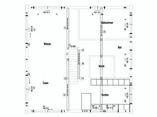
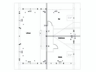
Aufgrund der Hanglage verfügt Blockhaus „Entlebuch“ über ein Untergeschoss aus Beton samt vorgebautem Balkon über die gesamte Hausbreite (Nordseite). Dort befinden sich die Zufahrt zur Doppelgarage sowie der Hauseingang. Man gelangt durch einen langgestreckten Eingangsbereich über eine Betontreppe hinauf ins Erdgeschoss, wo das eigentliche Blockhaus beginnt. Der quadratische Grundriss beinhaltet im Erdgeschoss neben dem großzügig mit bodentiefen oder traufhohen Fenstern ausgestatteten Wohn/Ess-Bereich (komplette Südhälfte des Hauses!) eine helle Küche mit Balkonzugang (Nordseite) und viel Fensterfläche (Ostseite), die zum Flur und zum Wohnbereich offen ist; einen Vorratsraum mit undurchsichtige Glasschiebetür; ein großes, lichtdurchflutetes Gäste-Bad/WC und ein gleichermaßen helles, großzügiges Gästezimmer mit Balkonzugang. Hinauf ins Dachgeschoss gelangt man über eine transparent wirkende Treppe aus Holz (Tritte), Stahl und Draht. Oben findet man sich auf einer Galerie wieder, welche die gesamte Hauslänge entlang unter der Firstpfette verläuft. Ein großes Schlafzimmer mit integrierter Ankleide sowie ein großes Wellnessbad mit Sauna sind von der Galerie aus erreichbar (alles Nordseite). Eine Dachgaube mit bodentiefem Fenster schafft zusätzlich Platz im Schlafzimmer und sorgt auch hier für viel Tageslicht und herrlichen Weitblick hinaus. Das Bad besitzt ein Dachfenster in der Schräge.
Angabe zum Preis: ab Oberkante Bodenplatte
Merkmale
- Gästezimmer
Sie haben Interesse?
Laden Sie sich jetzt Ihr kostenloses Exposé zu diesem Haus herunter:
Grundrissfür Entlebuch
Außenmaße
Länge: 11,54 m
Breite: 11,54 m
Grundrisse
Der Grundriss entspricht nicht Ihren Vorstellungen?
Passen Sie den Grundriss an Ihre persönlichen Bedürfnisse an und besprechen Sie Ihren individuellen Plan mit einem Bauberater des Anbieters.
Merkmale
Energiestandard und Förderung
Energiestandard
Effizienzhaus 40
Effizienzhaus 40 Plus
Effizienzhaus 55
Plusenergiehaus
Dach
Dachform
Satteldach
Dachneigung
24°
Kniestockhöhe
148 cm
Preisdetails für Entlebuch
Ausbauhaus ab
410.000 €
ab 1.234,27 €
Dieser Preis ist ein Beispiel für den Anfang, ein Berater kann Ihnen ein detailliertes Angebot erstellen, das Ihren Bedürfnissen entspricht.
Möchten Sie bei Ihrem Projekt Geld sparen?
Durch einen Angebotsvergleich mit Einfamilienhaus.de können Sie bis zu 20 % Ihrer Baukosten sparen.
Über den Anbieter Fullwood Wohnblockhaus
Zum Anbieterprofil
Bewertungen
4,3
(77)

Bewertungen
4,3
77 BewertungenHervorragend
Fullwood Wohnblockhaus in Zahlen
Gründungsjahr
1956
Häuser im Angebot
14
Häuser gesamt
ca. 200
Mitarbeiter
ca. 100
Bewertungen von Fullwood Wohnblockhaus
Noch keine Konkreten Pläne.- Dient alles bish...
Noch keine Konkreten Pläne.- Dient alles bisher nur für eine Information
21 März 2026Erwin D.
Antrag läuft,wir müssen abwarten
Antrag läuft,wir müssen abwarten
15 März 2026Dirk O.
Hervorragendes Beratungsgespräch. Freundluch ...
Hervorragendes Beratungsgespräch. Freundluch und sehr kompetent. Sehr Lösungsorientiert. Tolle Ideen für die Ausführung.
07 März 2026Sven P.
Leistungsspektrum
Preisgarantie
Bauzeit Garantie
Individuelle Planung
Blower Door Test
Persönliche Beratung für Ihre individuellen Wünsche
Finden Sie jetzt Ihren Ansprechpartner
Fullwood Wohnblockhaus
Weitere Häuser
Ähnliche Häuser Für Entlebuch