








Heidelberg von Fullwood Wohnblockhaus
Ab 640.000 €
Bewertungen von Fullwood Wohnblockhaus
4,3
(77)
Wohnfläche
266 m²
Zimmer
13
Ausbaustufe
Ausbauhaus
Bauweise
Blockhaus
Etagen
2,5
Energiestandard
Effizienzhaus 55
Dachform
Satteldach
Hausart
Zweifamilienhaus
Beschreibung
Urbanes Mehrfamilien-Solarhaus aus Holz
Mitten im städtischen Wohngebiet steht Haus „Heidelberg“ und fällt dort hauptsächlich wegen seines Baumaterials, Massivholz, auf. Schon während der Bauphase interessierten sich viele Schaulustige für das zweieinhalb geschossige Blockhaus, und auch jetzt, wo es außen in dezentem, zeitlosem Grau lasiert ist, reißt das Interesse nicht ab.
Erst Abriss dann nachhaltiger Neubau
Wie in jeder Großstadt sind auch in Heidelberg Baugrundstücke knapp, so dass die Eigentümerfamilie ein bebautes Grundstück erwarb, das vorhandene Einfamilienhaus abriss und ein neues, deutlich größeres Haus baute. Da die Familie zuvor etliche ältere, zum Verkauf stehende Häuser besichtigt hatte, die sehr feucht bis sogar schimmelig innen waren und ein Freund der Familie, der Schimmel saniert, wärmstens zu Holz als Baumaterial riet, war klar, dass mit Holz gebaut werden sollte. Ein mit „Plastikfolie“ gedämmtes, künstlich belüftetes Holzhaus kam jedoch nicht in Frage, nur ein ganz natürliches Blockhaus. Außerdem sollte es ein Mehrfamilienhaus mit drei Wohneinheiten und Keller sein, sowie einer große Doppelgarage. Nachdem die Hausplanung mit dem Blockhausspezialisten Fullwood Wohnblockhaus bis ins kleinste Detail durch war, ging es an den Hausbau selbst.
Viel Eigenleistung
Die Baufamilie entschloss sich zu einer Richtmeistermontage, bei der der Hausherr, dessen Vater und der mit ins Haus ziehende Schwager unter Anleitung und Vorarbeit eines erfahrenen Richtmeisters der Baufirma sein Blockhaus selber aufbaute. Die Hausherrin strich sämtlich Wände an, sowohl innen (milchweiße Holzlasur und weiße Wandfarbe) als auch außen. Beim Holz schimmert die Maserung durch. Inklusive Dacheindeckung dauerte der Rohbau drei Wochen, da die Innenwände (Ständerbau) in Einzelteilen kamen und nicht wie die 20 cm dicken, holzmassiven Außenwände in großen vorgefertigten Wandelementen. Dann konnte mit dem weiteren Innenausbau begonnenen werden: Für Estrich, Fliesen, Elektrik und Sanitär engagierte die Baufamilie örtliche Fachfirmen und erledigte alle restlichen Arbeiten eigenhändig.
Helles, offenes Wohnkonzept
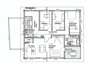
Sehr hell und mit reichlich natürlichem Lichteinfall präsentieren sich die nahezu identisch geschnittenen Wohnungen im Erdgeschoss und im Obergeschoss. Der nach Süden ausgerichtete Wohnbereich ist jeweils über die gesamte Breite bodentief verglast. Küche, Essbereich und Wohnzimmer sind in einem großen, lichtdurchfluteten Raum untergebracht, was viel Kommunikation und lebendiges Familienleben ermöglicht. Im Erdgeschoss schließt sich ein abgetrenntes Arbeitszimmer an, wo sich im Obergeschoss ein komplett überdachter Balkon befindet. Das Eigentümerpaar hat sehr weitsichtig ans Alter gedacht, und deshalb das Erdgeschoss, in dem es jetzt mit zwei Kindern zu viert wohnt, innen und außen komplett barrierefrei geplant. Komplettiert werden die je circa 133 m² Wohnfläche bietenden Wohnungen jeweils von zwei Kinderzimmern, einem Schlafzimmer mit Ankleide, einer Gäste-Dusche/WC und einem Badezimmer. Alle Räume sind von einem schmalen, schlauchförmigen Flur aus erreichbar. Ergänzt wird das Raumprogramm pro Etage mit einer Speisekammer, die von der Küche aus zugänglich ist. Miteinander verbunden sind die Wohnungen durch ein geräumiges Treppenhaus, das bis ins Dachgeschoss führt. Dort wird derzeit eine dritte Wohnung ausgebaut.
Energiesparsam mit solarer Energiequelle
Im gesamten Haus „Heidelberg“ ist ein belebender Kiefernduft wahrnehmbar, den die massiven Holzwände dezent verströmen. Den Hausbewohnern fällt das nur noch nach längerer Abwesenheit auf, täglich schätzen sie aber das warme und gesunde Wohnklima, das ebenfalls von den natürlichen Hauswänden erzeugt wird. Geheizt wird über die Fußbodenheizung mit einer Mischung aus Gas und Solarthermie (13 m² Fläche zur Warmwasser- und Stromerzeugung auf dem Satteldach). Dank der guten Dämmeigenschaften der einschaligen Hauswände und der Dachdämmung ist der Verbrauch gering und in der Praxis sogar noch geringer als die theoretisch errechneten Werte ergaben. Das könnte auch an der in Holzumgebung stets höher gefühlten Temperatur liegen: Man fühlt sich schneller behaglich und heizt dadurch weniger. Selbstverständlich sind die Fenster mit Wärmeschutzglas versehen, was bei diesen großen Flächen besonders wichtig ist.
Angabe zum Preis: ab Oberkante Bodenplatte
Merkmale
- Holzhaus
- Keller
- Balkon
Sie haben Interesse?
Laden Sie sich jetzt Ihr kostenloses Exposé zu diesem Haus herunter:
Grundrissfür Heidelberg
Außenmaße
Länge: 14 m
Breite: 12 m
Grundrisse
Der Grundriss entspricht nicht Ihren Vorstellungen?
Passen Sie den Grundriss an Ihre persönlichen Bedürfnisse an und besprechen Sie Ihren individuellen Plan mit einem Bauberater des Anbieters.
Merkmale
Energiestandard und Förderung
Energiestandard
Effizienzhaus 40
Effizienzhaus 40 Plus
Effizienzhaus 55
Plusenergiehaus
Dach
Dachform
Satteldach
Dachneigung
30°
Preisdetails für Heidelberg
Ausbauhaus ab
640.000 €
ab 1.926,67 €
Dieser Preis ist ein Beispiel für den Anfang, ein Berater kann Ihnen ein detailliertes Angebot erstellen, das Ihren Bedürfnissen entspricht.
Möchten Sie bei Ihrem Projekt Geld sparen?
Durch einen Angebotsvergleich mit Einfamilienhaus.de können Sie bis zu 20 % Ihrer Baukosten sparen.
Über den Anbieter Fullwood Wohnblockhaus
Zum Anbieterprofil
Bewertungen
4,3
(77)

Bewertungen
4,3
77 BewertungenHervorragend
Fullwood Wohnblockhaus in Zahlen
Gründungsjahr
1956
Häuser im Angebot
14
Häuser gesamt
ca. 200
Mitarbeiter
ca. 100
Bewertungen von Fullwood Wohnblockhaus
Noch keine Konkreten Pläne.- Dient alles bish...
Noch keine Konkreten Pläne.- Dient alles bisher nur für eine Information
21 März 2026Erwin D.
Antrag läuft,wir müssen abwarten
Antrag läuft,wir müssen abwarten
15 März 2026Dirk O.
Hervorragendes Beratungsgespräch. Freundluch ...
Hervorragendes Beratungsgespräch. Freundluch und sehr kompetent. Sehr Lösungsorientiert. Tolle Ideen für die Ausführung.
07 März 2026Sven P.
Leistungsspektrum
Preisgarantie
Bauzeit Garantie
Individuelle Planung
Blower Door Test
Persönliche Beratung für Ihre individuellen Wünsche
Finden Sie jetzt Ihren Ansprechpartner
Fullwood Wohnblockhaus
Weitere Häuser
Ähnliche Häuser Für Heidelberg