

















Köterbergblick von Fullwood Wohnblockhaus
Ab 250.000 €
Bewertungen von Fullwood Wohnblockhaus
4,3
(77)
Wohnfläche
145 m²
Zimmer
8
Ausbaustufe
Bausatzhaus
Bauweise
Blockhaus
Etagen
1,5
Energiestandard
Effizienzhaus 55
Dachform
Satteldach
Hausart
Einfamilienhaus
Beschreibung
Holzhaustraum aus hellem Naturholz und Glas
Mit ihrem Hausberater und dem Architekten des Blockhausspezialisten zusammen plante die junge Baufamilie ihr eigenes Holzhaus. Dabei wurden alle Wünsche, Ideen und Bedürfnisse genau besprochen, um ein individuelles Zuhause nach Maß zu planen. Auch Grundstück und Budget wurden selbstverständlich in die Überlegungen mit einbezogen, damit es am Ende keine bösen Überraschungen gab.
Mit viel Fleiß zum Preis
„Hinsichtlich der Baustufe war für uns eine Richtmeistermontage perfekt. Da konnten wir durch Eigenleistung Geld sparen.“, sagt die Hausherrin, die selbst beim Hausbau mitanpackte. Freiwillige Helfer aus Familien- und Freundeskreis gab es genug, so dass die Montage der vorgefertigten Wandelemente und zugeschnittenen Balken und Sparren etc. sehr schnell ging. Der Richtmeister wurde nur 4 Tage vor Ort benötigt. Auch die Dachdeckung und der Innenausbau verliefen arbeitsreich aber problemlos. Für Elektrik, Sanitär und Putzarbeiten (Keller) wurden Fachfirmen beauftragt. „Die Bauzeit hat mich sehr viel gelehrt!“, weiß der Hausherr, der sein Holzhaus nun in und auswendig kennt und reichlich handwerkliche Erfahrung sammeln konnte. „Da wir die Kombiblockwand von Fullwood gewählt haben, konnten wir im Hausinnern alles besonders flexibel gestalten.“, fährt seine Frau fort. Im Gegensatz zur einschaligen Blockwand von Fullwood besitzt die Kombiblockwand eine Kerndämmung und Elektroleitungen müssen nicht im Vorfeld schon genau geplant werden. Die Innenwandgestaltung ist bis zuletzt ganz flexibel: von Holzplanken, über Lehmquader, Bruchsteinplatten bis Tapete/Putz ist alles möglich. Außerdem verfügt sie über noch bessere Dämmerte.
Hell und behaglich wohnen
„Zwar wollten wir ein Holzhaus, aber trotzdem nicht ausschließlich Holzwände. Deshalb haben wir uns für weiß verputzte Trennwände entschieden und viele große Glasflächen nach außen eingebaut.“, erklärt die Hausherrin. So ist es drinnen sehr behaglich sowie auch schön hell. Durch die Fenster dringt reichlich natürliches Licht ein, das naturhelle Kiefernholz der Sichtbalkendecken verstrahlt optische Wärme und die Fußböden sind überall – außer in den Bädern – mit aufgehellten Eichendielen verkleidet. „Unser Boden ist immer fußwarm, auch wenn die Fußbodenheizung aus ist, und so hell, wie wir es mögen.“, freut sich der Hausherr. Angenehm ist das auch für die beiden Töchter: wenn sie spielend auf dem Boden sitzen, umherkrabbeln und durch die Räume tapsen kommt keine Kälte von unten. Die klassische aber schnörkellose Architektur von Holzhaus „Köterbergblick“, seine glatten, schlichten Holzwände, die moderne Einrichtung mit viel hellem Holz, viel weiß und etwas grau und schwarz ergeben ein stimmiges und leichtes Bild, ohne Einengung oder Druck, dafür umso mehr Behaglichkeit.
Kommunikation und Familienleben
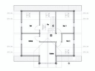
Auch der offen gehaltene Wohnbereich an der verglasten Südseite des Holzhauses trägt zum freien, lichten Wohngefühl bei und ermöglicht ungehinderte Kommunikation und gemeinschaftliches Familienleben. Küche, Esszimmer und Wohnzimmer gehen fließend ineinander über und öffnen sich auch zur Diele hin. Betritt man die Diele von außen (Nordseite), kann man geradeaus in den Wohnbereich schauen und weiter hinaus durch die bodentiefen Fenster in den riesigen Garten. „Unser Haus besitzt - abgesehen von seinem auffälligen Baumaterial - keine architektonischen Auffälligkeiten und ist eher kompakt, aber der verglaste Rechteckerker an der Südseite gibt ihm das gewisse Extra.“, schwärmt der Hausherr. Über zwei Geschosse geht dieses Zwerchhaus mit eigenem kleinem Satteldach und besticht nicht nur optisch sondern lässt sehr viel natürliches Licht in den Wohnbereich (Erdgeschoss) und das Schlafzimmer (Dachgeschoss). Das Haus besitzt also drei Giebel, bei Fullwood „Quergiebel“ genannt. Ganz praktisch geht es von der Küche in einen Hauswirtschaftsraum; ein Arbeitszimmer und eine Gäste-Dusche/WC sind von der Diele zugänglich; und eine Holztreppe im Schwedenlook (helles Holz + weiß + Edelstahlrohre) komplettiert das Erdgeschoss.
Genug Raum für persönlichen Rückzug
Das Dachgeschoss ist ganz den Hausbewohnern vorbehalten. Dort befinden sich zwei große, helle Kinderzimmer, ein geräumiges Familienbad sowie das gemütliche Schlafzimmer im Zwerchhaus mit angeschlossener Ankleide. Die Räume sind jeweils vom Flur aus zugänglich, wobei man das Schlafzimmer nur durch die Ankleide erreicht. Da das Gebäude unterkellert ist, gibt es genug Stauraum für die Familie, darüber hinaus gibt es noch einen Dachboden. „Besonders schätzen wir das Raumklima in unserem Holzhaus. Es fühlt sich immer sehr angenehm an und ist auch gesund.“, betont die junge Mutter. Die „atmenden“ Holzwände besitzen niemals eine kalte Haptik und sorgen außerdem dafür, dass die gefühlte Raumtemperatur 2-3 Grad höher ist, so dass weniger geheizt werden muss. Eine moderne Luftwärmepumpe sorgt für warmes Brauchwasser (Fußbodenheizung).
Angabe zum Preis: ab Oberkante Bodenplatte
Merkmale
- Erker
- Gästezimmer
- Kamin
Sie haben Interesse?
Laden Sie sich jetzt Ihr kostenloses Exposé zu diesem Haus herunter:
Grundrissfür Köterbergblick
Außenmaße
Länge: 10,5 m
Breite: 10,5 m
Grundrisse
Der Grundriss entspricht nicht Ihren Vorstellungen?
Passen Sie den Grundriss an Ihre persönlichen Bedürfnisse an und besprechen Sie Ihren individuellen Plan mit einem Bauberater des Anbieters.
Merkmale
Energiestandard und Förderung
Energiestandard
Effizienzhaus 40
Effizienzhaus 40 Plus
Effizienzhaus 55
Plusenergiehaus
Dach
Dachform
Satteldach
Dachneigung
42°
Kniestockhöhe
52 cm
Preisdetails für Köterbergblick
Bausatzhaus ab
250.000 €
ab 752,60 €
Dieser Preis ist ein Beispiel für den Anfang, ein Berater kann Ihnen ein detailliertes Angebot erstellen, das Ihren Bedürfnissen entspricht.
Möchten Sie bei Ihrem Projekt Geld sparen?
Durch einen Angebotsvergleich mit Einfamilienhaus.de können Sie bis zu 20 % Ihrer Baukosten sparen.
Über den Anbieter Fullwood Wohnblockhaus
Zum Anbieterprofil
Bewertungen
4,3
(77)

Bewertungen
4,3
77 BewertungenHervorragend
Fullwood Wohnblockhaus in Zahlen
Gründungsjahr
1956
Häuser im Angebot
14
Häuser gesamt
ca. 200
Mitarbeiter
ca. 100
Bewertungen von Fullwood Wohnblockhaus
Noch keine Konkreten Pläne.- Dient alles bish...
Noch keine Konkreten Pläne.- Dient alles bisher nur für eine Information
21 März 2026Erwin D.
Antrag läuft,wir müssen abwarten
Antrag läuft,wir müssen abwarten
15 März 2026Dirk O.
Hervorragendes Beratungsgespräch. Freundluch ...
Hervorragendes Beratungsgespräch. Freundluch und sehr kompetent. Sehr Lösungsorientiert. Tolle Ideen für die Ausführung.
07 März 2026Sven P.
Leistungsspektrum
Preisgarantie
Bauzeit Garantie
Individuelle Planung
Blower Door Test
Persönliche Beratung für Ihre individuellen Wünsche
Finden Sie jetzt Ihren Ansprechpartner
Fullwood Wohnblockhaus
Weitere Häuser
Ähnliche Häuser Für Köterbergblick