













Neffelbach von Fullwood Wohnblockhaus
Ab 300.000 €
Bewertungen von Fullwood Wohnblockhaus
4,3
(77)
Wohnfläche
129 m²
Zimmer
6,5
Ausbaustufe
Ausbauhaus
Bauweise
Blockhaus
Etagen
1,5
Energiestandard
Effizienzhaus 55
Dachform
Pultdach
Hausart
Einfamilienhaus
Beschreibung
Modernes Blockhaus mit Pultdach
Mit voller Überzeugung entschied sich das Baupaar zum Bau eines umweltfreundlichen, nachhaltig gebauten und klimafreundlichen Holzhauses. In dem neu erschlossenen Baugebiet sticht es unter all den Stein- und Leichtbauhäusern dank seines sinnlich-soliden Baumaterials hervor. Haus „Neffelbach“ fügt sich gut zwischen die anderen Neubauten ein, da seine Massivholzwände hell und glatt sind, und seine Optik insgesamt klar, schnörkellos und modern ist. „Um den zeitgemäßen Charakter zu unterstreichen, wählten wir zu den anthrazitfarbenen Ziegeln der Pultdächer schwarze Fenster und Türen. Das passt wunderbar zu den hellen Kiefernwänden und betont diese noch.“, beschreibt die Hausherrin den hell-dunkel Effekt des Gebäudes. „Außerdem wollten wir ein südliches Urlaubsflair kreieren, wozu bodentiefe Fenster und Fensterläden hervorragend passen.“
„Wenn man hereinkommt, ist es sofort angenehm warm. Das liegt am angenehmen Raumklima und der immer etwas höher gefühlten Temperatur in unserem Holzhaus.“, freut sich ihr Ehemann. Auch drinnen ist der Gesamteindruck hell und modern. Die Grundlage hierfür liefert der großflächige, offene Wohn-Ess-Kochbereich – in den man von außen direkt gelangt -, welcher dank der vielen, teils bodentiefen Fenster reichlich natürliches Licht erhält. Auch vertikal ist der Wohnbereich bis zum First offen. Das luftige, großzügige Wohngefühl wird von hellen Kiefernwänden (Vollholzwand), offenen Holzbalkendecken und weiß rauverputzten Ständerwänden (Kombiblockwand bzw. Leichtbau-Trennwänden) eingefasst.
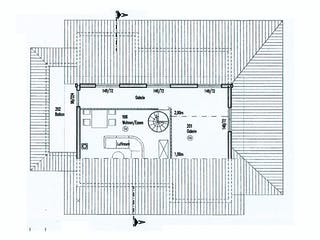
Während die Holzwände innen etwas nachdunkeln dürfen, sorgt außen ein optischer Vergrauungs-, Wetter- und UV-Schutzanstrich für den Erhalt der hellen Kiefernoptik. Im Dachgeschoss befindet sich eine gut belichtete, großflächige Galerie, die zum Lesen einlädt. Der Wohnalltag wurde im Vorfeld perfekt durchdacht und alles genau nach den Bedürfnissen und Wünschen der Hauseigentümer geplant. Die große Südterrasse mit überschaubarer Gartengröße ist die Fortsetzung des Wohnraums nach außen. Beheizt wird Haus „Neffelbach“ mit einer Fußbodenheizung (Gas), die durch eine solare Warmwasserbereitung unterstützt wird. Dank der gut isolierenden Holzwände bleibt der Heizenergiebedarf, trotz vieler Fenster und enormer Raumhöhe, gering.
Angabe zum Preis: ab Oberkante Bodenplatte
Merkmale
- Kamin
Sie haben Interesse?
Laden Sie sich jetzt Ihr kostenloses Exposé zu diesem Haus herunter:
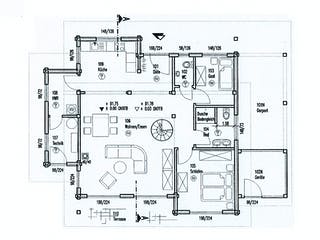
Grundrissfür Neffelbach
Außenmaße
Länge: 12 m
Breite: 11,2 m
Grundrisse
Der Grundriss entspricht nicht Ihren Vorstellungen?
Passen Sie den Grundriss an Ihre persönlichen Bedürfnisse an und besprechen Sie Ihren individuellen Plan mit einem Bauberater des Anbieters.
Merkmale
Energiestandard und Förderung
Energiestandard
Effizienzhaus 40
Effizienzhaus 40 Plus
Effizienzhaus 55
Plusenergiehaus
Dach
Dachform
Pultdach
Dachneigung
20°
Preisdetails für Neffelbach
Ausbauhaus ab
300.000 €
ab 903,13 €
Dieser Preis ist ein Beispiel für den Anfang, ein Berater kann Ihnen ein detailliertes Angebot erstellen, das Ihren Bedürfnissen entspricht.
Möchten Sie bei Ihrem Projekt Geld sparen?
Durch einen Angebotsvergleich mit Einfamilienhaus.de können Sie bis zu 20 % Ihrer Baukosten sparen.
Über den Anbieter Fullwood Wohnblockhaus
Zum Anbieterprofil
Bewertungen
4,3
(77)

Bewertungen
4,3
77 BewertungenHervorragend
Fullwood Wohnblockhaus in Zahlen
Gründungsjahr
1956
Häuser im Angebot
14
Häuser gesamt
ca. 200
Mitarbeiter
ca. 100
Bewertungen von Fullwood Wohnblockhaus
Noch keine Konkreten Pläne.- Dient alles bish...
Noch keine Konkreten Pläne.- Dient alles bisher nur für eine Information
21 März 2026Erwin D.
Antrag läuft,wir müssen abwarten
Antrag läuft,wir müssen abwarten
15 März 2026Dirk O.
Hervorragendes Beratungsgespräch. Freundluch ...
Hervorragendes Beratungsgespräch. Freundluch und sehr kompetent. Sehr Lösungsorientiert. Tolle Ideen für die Ausführung.
07 März 2026Sven P.
Leistungsspektrum
Preisgarantie
Bauzeit Garantie
Individuelle Planung
Blower Door Test
Persönliche Beratung für Ihre individuellen Wünsche
Finden Sie jetzt Ihren Ansprechpartner
Fullwood Wohnblockhaus
Weitere Häuser
Ähnliche Häuser Für Neffelbach