














Wiesengrund von Fullwood Wohnblockhaus
Ab 320.000 €
Bewertungen von Fullwood Wohnblockhaus
4,3
(77)
Wohnfläche
181 m²
Zimmer
7,5
Ausbaustufe
Bausatzhaus
Bauweise
Blockhaus
Etagen
1,5
Energiestandard
Effizienzhaus 55
Dachform
Satteldach
Hausart
Einfamilienhaus
Beschreibung
Hell Wohnen im modernen Blockhaus
Bevor es ans Bauen ging, wurde Holzhaus „Wiesengrund“ detailliert mit Fullwood Wohnblockhaus nach den Ideen und Vorstellungen eineinhalbgeschossig und sehr geräumig geplant. Als die Hausplanung abgeschlossen war, wurden 20 cm dicke, einschalige Kiefernwandelemente im Fullwood-Werk passgenau angefertigt sowie alle benötigten Deckenbalken, Dachsparren und die Firstpfette zugeschnitten und termingetreu zum Bauplatz geliefert. Unter der Regie und Vorarbeit eines kompetenten Richtmeisters baute der Hausherr sein Holzhaus, gemeinsam mit seinem Vater, auf und strich es außen mit einem minimal weiß pigmentierten Schutzanstrich an, um das naturhelle Kiefernholz noch etwas aufzuhellen.
Lichteinfall den ganzen Tag
Auch im Innern legt das Eigentümerpaar viel Wert auf Helligkeit, weshalb Ost-, Süd- und Westseite große, überwiegend bodentiefe Fenster aufweisen. Den ganzen Tag ist das Gebäude lichtdurchflutet, besonders der offene Wohn/Ess-Bereich profitiert von einem rundum bodentief verglasten Rechteckerker. Er ist Teil eines zweigeschossigen Zwerchhauses an der südlichen Traufseite. Weiß tapezierte Trennwände (leichte Ständerbauweise) reflektieren das Licht und hellen zusätzlich auf, während gemusterte Tapeten und farbig gestrichene Wandteile (ebenfalls alles Trennwände in Leichtbauweise) noch mehr Abwechslung ins Holzhaus bringen. Die massiven Außenwände und Sichtbalkendecken ließ man innen unbehandelt, so dass sie nachdunkeln. „Im Nachhinein war das ein Fehler, und wir hätten doch lieber den angebotenen UV-Schutz auftragen sollen.“, findet der Hauseigner heute. Helle Bodenfliesen – im Bad in Holzdielenoptik – und Türen aus Kiefernholz unterstreichen das behagliche Ambiente. Schwarze Fensterrahmen und transparente, geradlinige Edelstahlgeländer an den beiden Balkonen betonen die moderne Hausoptik. Das rot gedeckte Satteldach setzt einen freundlichen Farbakzent.
Kompakter Baukörper mit drittem Giebel
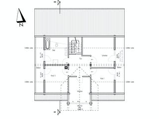
Aus dem rechteckigen Grundriss von Holzhaus „Wiesengrund“ tritt an der Südseite ein Zwerchhaus mit eigenem Satteldach hervor. Somit hat das kompakte Gebäude drei Giebel. An der Nordseite ist das Satteldach tief abgeschleppt. Ein Doppelcarport wurde nachträglich mit großem Abstand diagonal zum Wohnhaus gebaut und darauf Photovoltaikanlagen zur Stromerzeugung montiert. Eine Gastherme und ein Pelletofen versorgen das Wohngebäude mit Heizungswärme. An der westlichen Giebelseite betritt man die Diele, von der man rechts in die Küche gelangt (Süd- und West-Seite), weiter geradeaus rechts in das Wohn/Ess-Zimmer (Süd- und Ost-Seite) und ganz geradeaus in einen großen Hauswirtschaftsraum (Ostseite). Wohnbereich und Küche sind mit einem doppelflügeligen Wanddurchbruch verbunden. Vom Hauseingang links geht es in eine Gäste-Dusche/WC, weiter links in einen Vorratsraum, danach führt links die Geschosstreppe hinauf und dahinter befindet sich links ein Abstellraum.
Wohngesundes und behagliches Genusswohnen
Die Treppe führt auf einen zentriert im Dachgeschoss gelegenen Flur. Dieser erhält reichlich Tageslicht durch den nach Süden ausgerichteten, komplett verglasten Zwerchhaus-Giebel. Ursprünglich war dort ein Arbeitszimmer geplant, aber man entschied sich in der Bauphase dann doch für einen größeren Flur ohne Trennwand zum Arbeitsbereich. Somit ergänzen ein Schlafzimmer, zwei weitere Zimmer – alle mit fußwarmem Korkboden ausgelegt - und ein großes Wellnessbad das Raumprogramm.
Angabe zum Preis: ab Oberkante Bodenplatte
Merkmale
- Holzhaus
- Balkon
Sie haben Interesse?
Laden Sie sich jetzt Ihr kostenloses Exposé zu diesem Haus herunter:
Grundrissfür Wiesengrund
Grundrisse
Der Grundriss entspricht nicht Ihren Vorstellungen?
Passen Sie den Grundriss an Ihre persönlichen Bedürfnisse an und besprechen Sie Ihren individuellen Plan mit einem Bauberater des Anbieters.
Merkmale
Energiestandard und Förderung
Energiestandard
Effizienzhaus 40
Effizienzhaus 40 Plus
Effizienzhaus 55
Plusenergiehaus
Dach
Dachform
Satteldach
Dachneigung
30°
Kniestockhöhe
111 cm
Preisdetails für Wiesengrund
Bausatzhaus ab
320.000 €
ab 963,33 €
Dieser Preis ist ein Beispiel für den Anfang, ein Berater kann Ihnen ein detailliertes Angebot erstellen, das Ihren Bedürfnissen entspricht.
Möchten Sie bei Ihrem Projekt Geld sparen?
Durch einen Angebotsvergleich mit Einfamilienhaus.de können Sie bis zu 20 % Ihrer Baukosten sparen.
Über den Anbieter Fullwood Wohnblockhaus
Zum Anbieterprofil
Bewertungen
4,3
(77)

Bewertungen
4,3
77 BewertungenHervorragend
Fullwood Wohnblockhaus in Zahlen
Gründungsjahr
1956
Häuser im Angebot
14
Häuser gesamt
ca. 200
Mitarbeiter
ca. 100
Bewertungen von Fullwood Wohnblockhaus
Noch keine Konkreten Pläne.- Dient alles bish...
Noch keine Konkreten Pläne.- Dient alles bisher nur für eine Information
21 März 2026Erwin D.
Antrag läuft,wir müssen abwarten
Antrag läuft,wir müssen abwarten
15 März 2026Dirk O.
Hervorragendes Beratungsgespräch. Freundluch ...
Hervorragendes Beratungsgespräch. Freundluch und sehr kompetent. Sehr Lösungsorientiert. Tolle Ideen für die Ausführung.
07 März 2026Sven P.
Leistungsspektrum
Preisgarantie
Bauzeit Garantie
Individuelle Planung
Blower Door Test
Persönliche Beratung für Ihre individuellen Wünsche
Finden Sie jetzt Ihren Ansprechpartner
Fullwood Wohnblockhaus
Weitere Häuser
Ähnliche Häuser Für Wiesengrund