



Einfamilienhaus (mit Einliegerwohnung) von ISAR-Haus
Preis auf Anfrage
Bewertungen von ISAR-Haus
5,0
(1)
Wohnfläche
265 m²
Zimmer
8
Ausbaustufe
Schlüsselfertig
Bauweise
Massivhaus
Etagen
3
Energiestandard
Effizienzhaus 55
Dachform
Satteldach
Hausart
Einfamilienhaus
Beschreibung
Dieses Einfamilienhaus mit Einliegerwohnung bietet auf rund 220 m² Wohnfläche plus 45 m² Einliegerwohnung viel Raum für Familie, Beruf und persönliche Freiheit.
Mit seinem klassischen Satteldach und der durchdachten Raumaufteilung überzeugt das Haus durch Offenheit im Erdgeschoss, einem großen Büro, sowie flexiblen Rückzugsorten im Obergeschoss. Die Einliegerwohnung ist separat nutzbar – ideal für Angehörige, Gäste oder zur Vermietung.
Ein Zuhause mit vielen Möglichkeiten.
Dieses Haus wurde bereits für Bauherren realisiert und dient als Inspiration für Ihr individuelles Haus.
Zimmeranzahl inkl. ELW: 6 Zimmer (+2)
m² inkl. ELW: 220 m² (+ 45 m²)
Merkmale
- Einliegerwohnung
- Gästezimmer
Sie haben Interesse?
Laden Sie sich jetzt Ihr kostenloses Exposé zu diesem Haus herunter:
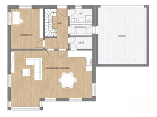
Grundrissfür Einfamilienhaus (mit Einliegerwohnung)
Grundrisse
Der Grundriss entspricht nicht Ihren Vorstellungen?
Passen Sie den Grundriss an Ihre persönlichen Bedürfnisse an und besprechen Sie Ihren individuellen Plan mit einem Bauberater des Anbieters.
Merkmale
Energiestandard und Förderung
Energiestandard
Effizienzhaus 55
Dach
Dachform
Satteldach
Preisdetails für Einfamilienhaus (mit Einliegerwohnung)
Schlüsselfertig ab
Preis auf Anfrage
Dieser Preis ist ein Beispiel für den Anfang, ein Berater kann Ihnen ein detailliertes Angebot erstellen, das Ihren Bedürfnissen entspricht.
Möchten Sie bei Ihrem Projekt Geld sparen?
Durch einen Angebotsvergleich mit Einfamilienhaus.de können Sie bis zu 20 % Ihrer Baukosten sparen.
Über den Anbieter ISAR-Haus
Zum Anbieterprofil
Bewertungen
5,0
(1)

Bewertungen
5,0
1 BewertungHervorragend
ISAR-Haus in Zahlen
Gründungsjahr
2012
Häuser im Angebot
5
Häuser pro Jahr
40
Häuser gesamt
>550
Mitarbeiter
15
Bewertungen von ISAR-Haus
Geilster Laden ever
Geilster Laden ever
17 März 2026Ali F.
Leistungsspektrum
Finanzierungsberatung
Preisgarantie
Bauzeit Garantie
Individuelle Planung
Blower Door Test
Persönliche Beratung für Ihre individuellen Wünsche
Finden Sie jetzt Ihren Ansprechpartner
ISAR-Haus
Ähnliche Häuser Für Einfamilienhaus (mit Einliegerwohnung)